LOADING

442 Kinloch Crescent Saskatoon, Saskatchewan S7M 5K1

  • 442 Kinloch CrescentSaskatoon, Saskatchewan  S7M 5K1 - Photo 1 - SK020529
  • 442 Kinloch CrescentSaskatoon, Saskatchewan  S7M 5K1 - Photo 2 - SK020529
  • 442 Kinloch CrescentSaskatoon, Saskatchewan  S7M 5K1 - Photo 3 - SK020529
  • 442 Kinloch CrescentSaskatoon, Saskatchewan  S7M 5K1 - Photo 4 - SK020529
3 Bedroom 3 Bathroom 1,670 ft2
2 Level Forced Air Lawn

$589,900

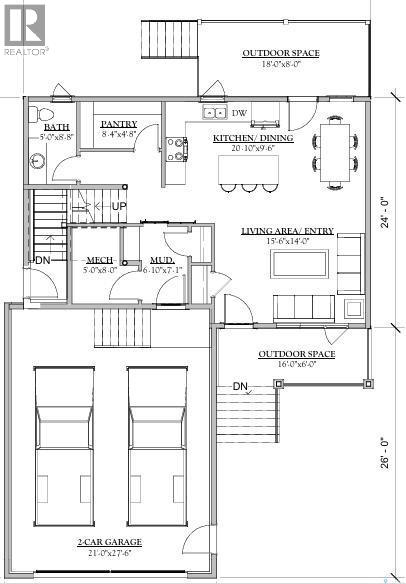
Welcome to 442 Kinloch Crescent — a beautiful two-storey home currently under construction in the family-friendly Parkridge neighbourhood. With 1,670 sq. ft. of thoughtfully designed living space and situated on a large lot, this home offers 3 bedrooms and 3 bathrooms, making it a perfect fit for families or anyone seeking a comfortable and modern layout. The main floor features an open-concept living area with luxury vinyl plank flooring, a stylish kitchen with sleek finishes and quartz countertops, and a bright dining area that opens to the completed 18' x 8' backyard deck. Upstairs, you’ll find a spacious primary bedroom complete with a 4-piece ensuite, two additional bedrooms, a full bath, and convenient second-floor laundry. The home also includes an oversized double attached garage (22’ x 28’), a concrete driveway and a front walkway, and a basement with a separate entry—providing potential for future development or a legal suite. The exterior combines stone and vinyl siding for a fresh, modern look, and the front yard will be landscaped with lawn and trees. Situated just minutes from Blairmore’s many amenities, you’ll enjoy nearby grocery stores, restaurants, fitness centres, schools, and the Shaw Centre for recreation—all while being tucked away in a quiet residential setting. Some customization options may still be available, allowing you to add your personal touch before completion. Plus, this property comes with the peace of mind built by DXB Properties Inc. and is complete with New Home Warranty. Possession is anticipated for the end of January 2026—making this the perfect opportunity to start the new year in your brand-new home. (id:34297)

Property Details

MLS® Number SK020529
Property Type Single Family
Neigbourhood Parkridge SA
Features Treed, Rectangular, Double Width Or More Driveway, Sump Pump
Structure Deck

Building

BathroomTotal 3
BedroomsTotal 3
Appliances Garage Door Opener Remote(s)
ArchitecturalStyle 2 Level
BasementDevelopment Unfinished
BasementType Full (unfinished)
ConstructedDate 2026
FireplacePresent No
HeatingFuel Natural Gas
HeatingType Forced Air
StoriesTotal 2
SizeInterior 1,670 Ft2
Type House

Land

Acreage No
LandscapeFeatures Lawn
SizeIrregular 7960.00
SizeTotal 7960 Sqft
SizeTotalText 7960 Sqft

Rooms

Level Type Dimensions
Second Level Bedroom Measurements not available x 10 ft
Second Level Bedroom 8'8 x 11'4
Second Level 4pc Bathroom Measurements not available
Second Level Primary Bedroom 13'4 x 10'10
Second Level 4pc Ensuite Bath Measurements not available
Second Level Laundry Room Measurements not available
Main Level Living Room 14 ft x Measurements not available
Main Level Kitchen 11'10 x 9'6
Main Level Dining Room 9 ft x Measurements not available
Main Level 2pc Bathroom Measurements not available
Main Level Mud Room 7'1 x 6'10
Main Level Other 8 ft x 5 ft

https://www.realtor.ca/real-estate/28973779/442-kinloch-crescent-saskatoon-parkridge-sa

Contact Us

Contact us for more information


Your Favourites

 

No Favourites Found