LOADING

410 Eldorado Street Warman, Saskatchewan S0K 4S0

  • 410 Eldorado StreetWarman, Saskatchewan  S0K 4S0 - Photo 1 - SK015173
  • 410 Eldorado StreetWarman, Saskatchewan  S0K 4S0 - Photo 2 - SK015173
  • 410 Eldorado StreetWarman, Saskatchewan  S0K 4S0 - Photo 3 - SK015173
3 Bedroom 2 Bathroom 1,050 ft2
2 Level Forced Air

$383,700

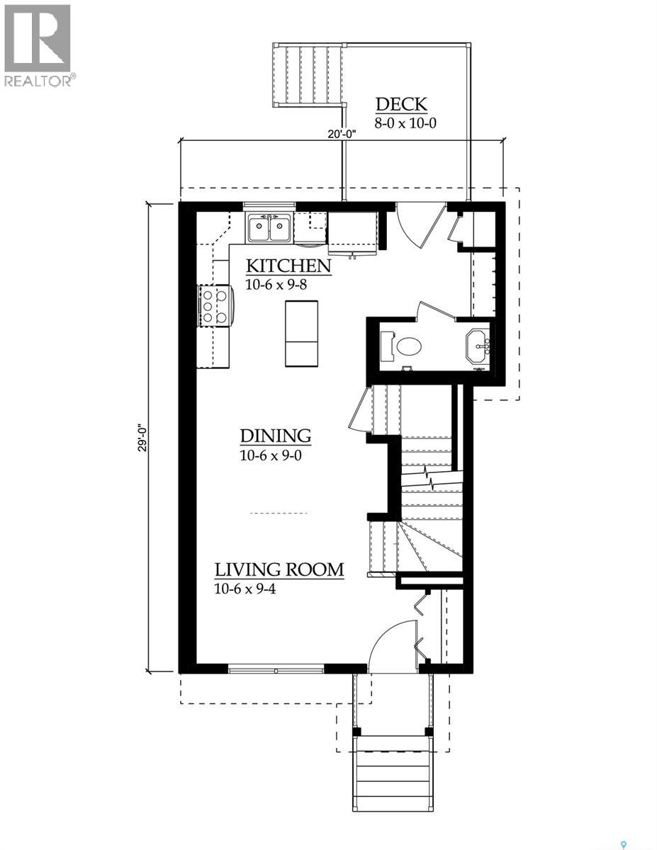
Features & Amenities: -1050 sq. ft Two Storey -3 Bedrooms and 1 1/2 Bathroom -Kitchen with pantry and Island -Soft Close Cabinetry Throughout -LED Light Bulbs Throughout -High-Efficiency Furnace and Power Vented Hot Water Heater -HRV Unit -10 Year Saskatchewan New Home Warranty -GST and PST included in purchase price. GST and PST rebate back to builder. -Front Landscape and walkway is included. (id:34297)

Property Details

MLS® Number SK015173
Property Type Single Family
Features Other, Rectangular, Sump Pump
Structure Deck

Building

BathroomTotal 2
BedroomsTotal 3
Appliances Central Vacuum - Roughed In
ArchitecturalStyle 2 Level
BasementDevelopment Unfinished
BasementType Full (unfinished)
ConstructedDate 2025
FireplacePresent No
HeatingFuel Natural Gas
HeatingType Forced Air
StoriesTotal 2
SizeInterior 1,050 Ft2
Type House

Land

Acreage No
SizeFrontage 39 Ft
SizeIrregular 4056.00
SizeTotal 4056 Sqft
SizeTotalText 4056 Sqft

Rooms

Level Type Dimensions
Second Level Primary Bedroom 10 ft ,10 in x 10 ft ,10 in
Second Level 4pc Bathroom x x x
Second Level Bedroom 9 ft x 8 ft ,2 in
Second Level Bedroom 9 ft x 8 ft ,6 in
Main Level Living Room 9 ft ,4 in x 10 ft ,6 in
Main Level Dining Room 9 ft x 10 ft ,6 in
Main Level Kitchen 9 ft ,8 in x 10 ft ,6 in
Main Level 2pc Bathroom x x x

https://www.realtor.ca/real-estate/28711762/410-eldorado-street-warman

Contact Us

Contact us for more information


Your Favourites

 

No Favourites Found