LOADING

339 Taskamanwa Street Saskatoon, Saskatchewan S7V 1X3

  • 339 Taskamanwa StreetSaskatoon, Saskatchewan  S7V 1X3 - Photo 1 - SK018922
  • 339 Taskamanwa StreetSaskatoon, Saskatchewan  S7V 1X3 - Photo 2 - SK018922
  • 339 Taskamanwa StreetSaskatoon, Saskatchewan  S7V 1X3 - Photo 3 - SK018922
  • 339 Taskamanwa StreetSaskatoon, Saskatchewan  S7V 1X3 - Photo 4 - SK018922
4 Bedroom 3 Bathroom 2,045 ft2
2 Level Fireplace Forced Air

$686,570

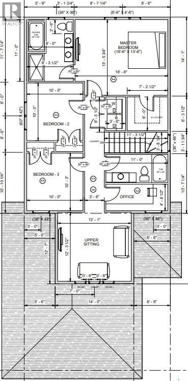
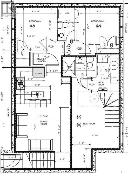
This home in Brighton, currently under construction, offers 2,045 sq. ft. of modern living in one of Saskatoon’s fastest-growing neighbourhoods. Surrounded by shopping, gyms, theatres, clinics, parks, and more, it combines convenience with comfort. Built by SK Homes, this property offers quality construction with thoughtful finishes throughout. The main floor features a guest bedroom and a 4-piece bathroom, along with an open-concept kitchen, dining, and family area. A feature wall with an electric fireplace anchors the living space, while large windows bring in plenty of natural light. The kitchen is finished with soft-close cabinetry and quartz countertops that flow throughout the entire home. From the dining area, step outside to the 12' x 10' deck, perfect for outdoor living. Upstairs, a bright second living space complements two bedrooms, an office, a shared 4-piece bathroom, and a convenient side-by-side laundry area. The master suite is spacious, complete with a walk-in closet and a 5-piece ensuite bathroom. The house also comes with an oversized two-car garage, which adds extra storage and functionality. A double concrete driveway, sidewalks to the suite entrance, and front landscaping are also included. This home includes a $6,000 appliance credit, allowing buyers to select appliances that fit their style. The basement will be insulated with pony walls, with a FUTURE DEVELOPMENT OPTION that includes a recreation room for the main side and a two-bedroom legal suite. By purchasing early, buyers have the opportunity to personalize the home with customizations such as paint, floor or carpet colours, cabinetry styles, countertop designs, and exterior finishes—making this home truly their own. (id:34297)

Property Details

MLS® Number SK018922
Property Type Single Family
Neigbourhood Brighton
Features Rectangular, Double Width Or More Driveway, Sump Pump
Structure Deck

Building

BathroomTotal 3
BedroomsTotal 4
Appliances Refrigerator, Dishwasher, Garage Door Opener Remote(s), Hood Fan, Stove
ArchitecturalStyle 2 Level
BasementDevelopment Unfinished
BasementType Full (unfinished)
ConstructedDate 2026
ConstructionStyleAttachment Detached
FireplaceFuel Electric
FireplacePresent Yes
FireplaceType Conventional
HeatingFuel Natural Gas
HeatingType Forced Air
StoriesTotal 2
SizeInterior 2,045 Ft2
Type House

Land

Acreage No
SizeFrontage 38 Ft
SizeIrregular 4737.46
SizeTotal 4737.46 Sqft
SizeTotalText 4737.46 Sqft

Rooms

Level Type Dimensions
Second Level 4pc Bathroom 5ft x 11ft
Second Level Office 4ft x 11ft
Second Level Living Room 13ft x 12ft
Second Level Bedroom 10ft x 10ft
Second Level Bedroom 10ft x 10ft
Second Level Bedroom 13ft x 16ft
Second Level 5pc Ensuite Bath 11ft x 8ft
Main Level Foyer 13ft x 7ft
Main Level Bedroom 10ft x 9ft
Main Level 4pc Bathroom 5ft x 10ft
Main Level Family Room 16ft x 13ft
Main Level Kitchen/dining Room 10ft x 17ft
Main Level Mud Room 5ft x 10ft

https://www.realtor.ca/real-estate/28892886/339-taskamanwa-street-saskatoon-brighton

Contact Us

Contact us for more information


Your Favourites

 

No Favourites Found