5 Bedroom
4 Bathroom
2,709 ft2
2 Level
Fireplace
Central Air Conditioning, Air Exchanger
$2,165,000
Please note that photos are renderings and this home is not built yet. This striking home is designed and built by award-winning homebuilder Lexis Homes and is located in the exciting new phase of Westhills at The Willows. The future homeowner will enjoy the tranquility of golf course living. Designed with wellness and lifestyle in mind, the community features upcoming revitalized clubhouse facilities, tennis courts, a scenic skating pond, and cross-country ski trails. A pool, splash pad, and Nordic spa are also proposed as part of this vibrant neighbourhood development. This 2,709 sq. ft. two-storey home includes a fully finished walkout basement and features 10-foot ceilings throughout the main floor. Large windows flood the home with natural light, a gas fireplace to provide warmth and comfort during Saskatchewan winters. The interior showcases impressive, thoughtfully curated design details, complemented by a modern exterior finished with low-maintenance stucco and stone accents. A $75,000 landscaping budget is included in the price. The primary suite offers an exceptionally large walk-in closet, creating a true retreat experience. The walkout basement is bright and welcoming, thanks to oversized windows that enhance both function and livability. A heated triple-car garage ensures year-round convenience, and the home is built for comfort and efficiency with R-28 wall insulation and insulation beneath the basement slab. As a Holmes Approved Homebuilder, every Lexis Homes project includes three detailed third-party inspections performed by Mike Holmes–approved inspectors which provides added confidence, quality assurance, and peace of mind. Don’t miss this incredible opportunity to own a premium home in a highly sought-after location! Alternate exterior options are available for this home. Lexis Homes offers (id:34297)
Property Details
|
MLS® Number
|
SK026974 |
|
Property Type
|
Single Family |
|
Neigbourhood
|
The Willows |
|
Features
|
Irregular Lot Size, Sump Pump |
|
Structure
|
Deck |
Building
|
BathroomTotal
|
4 |
|
BedroomsTotal
|
5 |
|
Appliances
|
Washer, Refrigerator, Dishwasher, Dryer, Oven - Built-in, Humidifier, Garage Door Opener Remote(s), Hood Fan, Stove |
|
ArchitecturalStyle
|
2 Level |
|
ConstructedDate
|
2026 |
|
ConstructionStyleAttachment
|
Detached |
|
CoolingType
|
Central Air Conditioning, Air Exchanger |
|
FireplaceFuel
|
Gas |
|
FireplacePresent
|
Yes |
|
FireplaceType
|
Conventional |
|
HeatingFuel
|
Natural Gas |
|
StoriesTotal
|
2 |
|
SizeInterior
|
2,709 Ft2 |
|
Type
|
House |
Land
|
Acreage
|
No |
|
FenceType
|
Partially Fenced |
|
SizeFrontage
|
68 Ft |
|
SizeIrregular
|
8760.00 |
|
SizeTotal
|
8760 Sqft |
|
SizeTotalText
|
8760 Sqft |
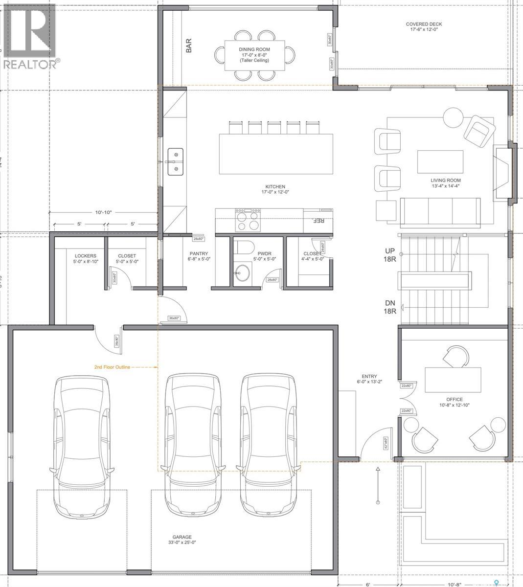
Rooms
| Level |
Type |
Length |
Width |
Dimensions |
|
Second Level |
Bonus Room |
12 ft ,10 in |
10 ft ,11 in |
12 ft ,10 in x 10 ft ,11 in |
|
Second Level |
Bedroom |
14 ft |
15 ft ,3 in |
14 ft x 15 ft ,3 in |
|
Second Level |
5pc Bathroom |
8 ft ,7 in |
13 ft ,6 in |
8 ft ,7 in x 13 ft ,6 in |
|
Second Level |
Bedroom |
11 ft ,6 in |
13 ft ,3 in |
11 ft ,6 in x 13 ft ,3 in |
|
Second Level |
Bedroom |
11 ft ,6 in |
13 ft ,3 in |
11 ft ,6 in x 13 ft ,3 in |
|
Second Level |
4pc Bathroom |
8 ft ,8 in |
5 ft ,4 in |
8 ft ,8 in x 5 ft ,4 in |
|
Second Level |
Laundry Room |
6 ft ,3 in |
9 ft ,8 in |
6 ft ,3 in x 9 ft ,8 in |
|
Basement |
Bedroom |
12 ft ,7 in |
11 ft ,2 in |
12 ft ,7 in x 11 ft ,2 in |
|
Basement |
Bedroom |
13 ft ,2 in |
12 ft ,3 in |
13 ft ,2 in x 12 ft ,3 in |
|
Basement |
Living Room |
20 ft ,1 in |
17 ft ,6 in |
20 ft ,1 in x 17 ft ,6 in |
|
Basement |
4pc Bathroom |
9 ft ,10 in |
5 ft |
9 ft ,10 in x 5 ft |
|
Main Level |
Living Room |
14 ft ,3 in |
13 ft ,4 in |
14 ft ,3 in x 13 ft ,4 in |
|
Main Level |
Dining Room |
8 ft |
17 ft |
8 ft x 17 ft |
|
Main Level |
Kitchen |
12 ft |
17 ft |
12 ft x 17 ft |
|
Main Level |
2pc Bathroom |
5 ft |
5 ft |
5 ft x 5 ft |
|
Main Level |
Mud Room |
8 ft ,10 in |
10 ft |
8 ft ,10 in x 10 ft |
|
Main Level |
Office |
12 ft ,10 in |
10 ft ,8 in |
12 ft ,10 in x 10 ft ,8 in |
https://www.realtor.ca/real-estate/29260779/170-willows-way-saskatoon-the-willows