5 Bedroom
4 Bathroom
1,302 ft2
Bi-Level
Forced Air
$659,000
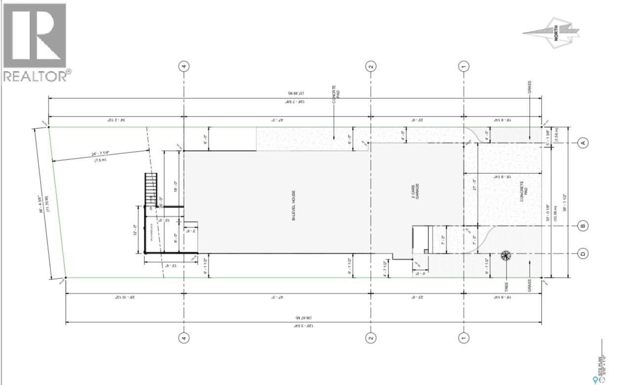
Welcome to this stunning Modified bilevel House with Pre Sale Opportunity at 1255 Nightingale Terrace. This House is an investors dream/or a First time Home Buyer's Paradise. This Bilevel house provides you Comfort and Functionality with exceptional Living. House comes with Large windows for extra natural light and many thoughtful upgrades. To mention some upgrades- Luxury Vinyl Flooring throughout Owner's Side , Glossy kitchen Cabinets, Modern Lighting & Plumbing Fixtures. The kitchen boasts quartz countertops, stylish tile backsplash, a large island, Glossy custom cabinetry, and a pantry for extra storage. You’ll find two Good size Bedrooms conveniently located on the same floor. The primary suite includes a spacious walk-in closet and a luxurious 4-piece ensuite. Additional features include a side entry for fully finished 2 bedroom legal Suite and Concrete Walkway to the Suite Entrance. Not only that, this house also Boasts of an Additional Guest Suite with a Second Separate Entrance which INCLUDES Guest room, 4-piece Bath and a Living room with Kitchenette. This home will be completed with front yard landscaping, and a concrete driveway. Suite Ready and a Perfect Income Generator- This Home Awaits it's New Owners. Call Today to for more information. (id:34297)
Property Details
|
MLS® Number
|
SK021535 |
|
Property Type
|
Single Family |
|
Neigbourhood
|
Kensington |
|
Features
|
Rectangular, Sump Pump |
|
Structure
|
Deck |
Building
|
BathroomTotal
|
4 |
|
BedroomsTotal
|
5 |
|
Appliances
|
Washer, Refrigerator, Dishwasher, Dryer, Garage Door Opener Remote(s), Hood Fan, Stove |
|
ArchitecturalStyle
|
Bi-level |
|
BasementDevelopment
|
Finished |
|
BasementType
|
Full (finished) |
|
ConstructedDate
|
2025 |
|
FireplacePresent
|
No |
|
HeatingFuel
|
Natural Gas |
|
HeatingType
|
Forced Air |
|
SizeInterior
|
1,302 Ft2 |
|
Type
|
House |
Land
|
Acreage
|
No |
|
SizeIrregular
|
4760.00 |
|
SizeTotal
|
4760 Sqft |
|
SizeTotalText
|
4760 Sqft |
Rooms
| Level |
Type |
Length |
Width |
Dimensions |
|
Basement |
Other |
9 ft ,7 in |
17 ft |
9 ft ,7 in x 17 ft |
|
Basement |
3pc Bathroom |
|
|
xxx x xxx |
|
Basement |
Living Room |
10 ft ,11 in |
7 ft ,4 in |
10 ft ,11 in x 7 ft ,4 in |
|
Basement |
Living Room |
12 ft ,8 in |
10 ft |
12 ft ,8 in x 10 ft |
|
Basement |
Kitchen |
12 ft |
6 ft ,7 in |
12 ft x 6 ft ,7 in |
|
Basement |
Bedroom |
10 ft |
10 ft ,6 in |
10 ft x 10 ft ,6 in |
|
Basement |
3pc Bathroom |
|
|
xxx x xxx |
|
Basement |
Bedroom |
12 ft ,1 in |
11 ft |
12 ft ,1 in x 11 ft |
|
Main Level |
Living Room |
13 ft |
12 ft |
13 ft x 12 ft |
|
Main Level |
Kitchen |
19 ft |
13 ft |
19 ft x 13 ft |
|
Main Level |
Dining Room |
10 ft |
14 ft |
10 ft x 14 ft |
|
Main Level |
Bedroom |
9 ft |
10 ft ,6 in |
9 ft x 10 ft ,6 in |
|
Main Level |
3pc Bathroom |
|
|
xxx x xxx |
|
Main Level |
Bedroom |
9 ft ,6 in |
9 ft ,10 in |
9 ft ,6 in x 9 ft ,10 in |
|
Main Level |
Primary Bedroom |
12 ft ,6 in |
12 ft |
12 ft ,6 in x 12 ft |
|
Main Level |
3pc Ensuite Bath |
|
|
xxx x xxx |
|
Main Level |
Office |
8 ft ,6 in |
6 ft |
8 ft ,6 in x 6 ft |
https://www.realtor.ca/real-estate/29022715/1255-nightingale-terrace-saskatoon-kensington